REF. 21682_201

Appartement à vendre

TOURNON-SUR-RHÔNE


 

PROGRAMME NEUF en EXCLUSIVITÉ chez PROPRIUP

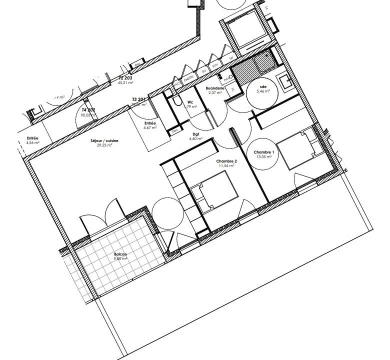
Appartement de type 3 d'une surface carrez de 73,07 m² situé au 2ème étage dans une résidence entièrement sécurisée et réalisée dans de très belles finitions normées RT 2012.

Cet appartement comprend une pièce de vie d'une surface de près de 30 m² donnant sur un balcon de 9 m².

Place de parking attribuée et garage (en sus du prix) au sein de la copropriété, ascenseur.

Situé non loin de Trigano VDL et de la crèche privée.

Tournon-sur-Rhône est une charmante commune de plus de 11.000 habitants qui tire profit de son environnement privilégié grâce à la proximité de la gare TER de Tain l’Hermitage desservant Lyon, Valence et Marseille.

Entre écoles, collèges et lycées, la ville possède tous les établissements nécessaires à une vie familiale et éducative épanouie. (Avec entre autre : Lycée Marius Bouvier à 1,2 km, Ecole Jean Moulin à 2 km, Collège Saint-Louis, Lycée Gabriel Faure à 3,5 km, Collège et Lycée Notre-Dame, Collège Marie Curie à 3,6 km et Crèche Planète Môme à 5 km, Lycée Hôtelier).

La ville est mise en valeur par ses sentiers pédestres révélant des panoramas superbes sur le fleuve et les collines environnantes.

La ViaRhôna, voie verte sécurisée, traverse la ville du nord au sud, créant une promenade entre vergers et vignobles.

Elle propose également une large gamme d’activités nautiques sur le Rhône (canoë-kayak, l’aviron ...).

Les infrastructures sportives et culturelles sont nombreuses comme le complexe sportif Jeannie Longo et son espace aquatique Linaë, le Château-Musée situé à 3 km et le Ciné-Théatre, Cité du Chocolat Valrhôna et la Cave de Tain).

Située à 4,5 km de Tain-L'Hermitage avec l'accès autoroute A7 et 8 mn de la gare TER, 25 km de Valence, 30 minutes de la gare TGV, 23 km de Romans-Sur-Isère, 101 km de Grenoble et 94 km de Lyon.

Vous trouverez à moins de 5 km, toutes les commodités nécessaires : hypermarchés, marché couvert, boulangeries, pharmacies, banques, coiffeurs, fleuristes, pressing, restaurants, services de santé,...

N’attendez plus, faites le bon investissement : celui de la tranquillité de bâtir votre patrimoine dans un environnement calme, attractif et aux rénovations énergétiques engagées.

A noter : Dispositif “JEANBRUN” applicable

 

LES INFOS ESSENTIELLES

  • Surface habitable : 73,07 m²

  • 2 chambres

  • 1 salle d’eau

  • Balcon

  • Parking

  • Garage

  • Ascenseur

  • Nombre de lots dans la copropriété : 35

  • Charges de copropriété : non définis

  • Aucune procédure en cours

  • Prix de vente : 249’256,- EUR

  • Les honoraires sont à la charge du vendeur.

  • Frais de notaire réduits

LES PERFORMANCES ÉNERGÉTIQUES

LA SITUATION GÉOGRAPHIQUE

 

Les informations sur les risques auxquels ce bien est exposé sont disponibles sur le site Géorisques : www.georisques.gouv.fr

 

 

Vous souhaitez visiter ou avoir plus d’informations ?

CÉLINE VEY
AGENT IMMOBILIER

07 52 63 62 36
04 75 07 28 29
celine@propriup.fr

Rencontrez-moi en agence au 30 av. de Nîmes, Tournon-sur-Rhône. À très vite ! 

Précédent
Précédent

REF. 21579

Suivant
Suivant

REF. 21682_202